Porzione di bifamiliare in vendita

Modena, Str. delle Quattro Ville - Villanova
€ 560.000
5 locali 5 locali
238 Mq 238 Mq
4 bagni 4 bagni

Porzione di bifamiliare in vendita

Modena, Str. delle Quattro Ville - Villanova

Descrizione annuncio

VILLANOVA

°°°POSSIBILITÀ DI CREARE DUE UNITÀ ABITATIVE SEPARATE, ENTRAMBE CON INGRESSO INDIPENDENTE°°°

A soli due chilometri da Modena, è disponibile una porzione di bifamiliare di nuova costruzione, pronta nel 2026 in soli tre/quattro mesi, COMPLETAMENTE PERSONALIZZABILE secondo le proprie esigenze.

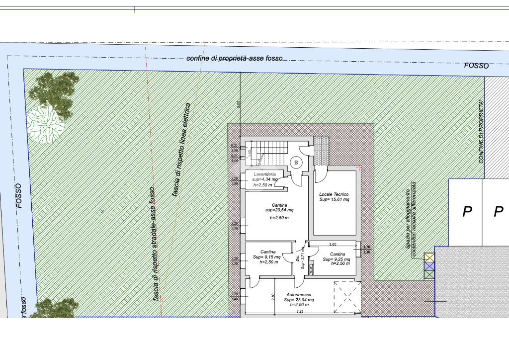
L'immobile internamente è attualmente al grezzo e offre la possibilità di avere un'unica abitazione su due livelli oppure due unità abitative (una al piano terra ed una al piano primo) con ingresso indipendente e giardino privato.

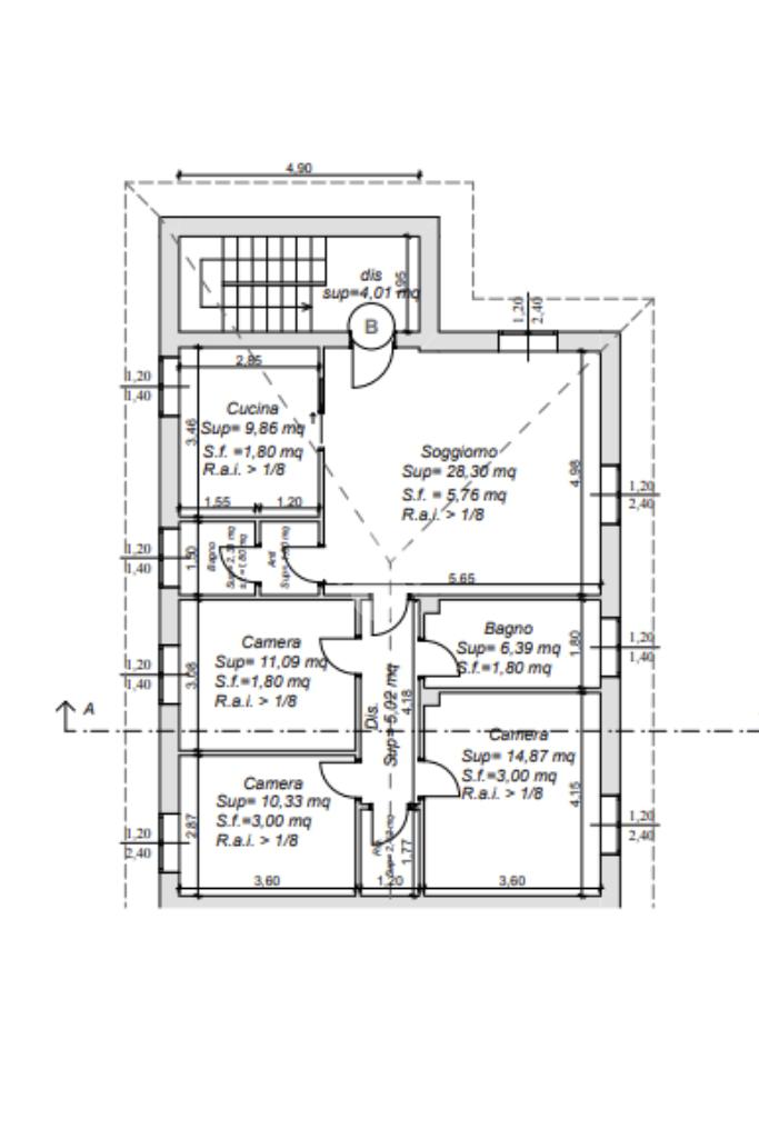
L'immobile, di 238 mq, si sviluppa su due livelli così pensati: piano terra e primo piano. Al piano terra, l'ingresso si apre su un ampio soggiorno, con cucina separata, due camere e due bagni. Al primo piano, troviamo altre tre camere da letto, due bagni, soggiorno con cucina open space.

L'immobile dispone in totale di 4 bagni.

Completano la proprietà un garage doppio auto e un posto auto esterno.

L'immobile è dotato di riscaldamento a pavimento, aria condizionata e IMPIANTO FOTOVOLTAICO, garantendo comfort e sostenibilità.

Per info, il consulente risponde al 338 5240366.

Mostra tutto

Nelle vicinanze

Trasporto pubblico Trasporto pubblico
MO1024
MO1024
390 m
MO1023
MO1023
410 m
Quattro Ville
Quattro Ville
390 m
Scuole Scuole
Scuola Primaria Statale "C. Menotti"
700 m
Scuola Primaria Statale "A. Frank"
2,9 Km
Ristoranti Ristoranti
Ad Antico Amore
1,4 Km
Inbàraca ostaria & dintorni
1,6 Km
L'Osteria del Torchio
2,6 Km
Mostra tutto

Caratteristiche

Rif.:
61178080
Piano:
Terra con giardino di 1
Totale piani:
1
Box:
1
Posti auto:
1
Camere da letto:
4
Mostra tutto
Prezzo Prezzo
€ 560.000
Rata mutuo Rata mutuo
€ 2.660 / mese
Spese annue Spese annue
€ 100
Proponi il tuo prezzoProponi il tuo prezzo

Classe Energetica

A4
A4
A4
A4
A4
A4
A4
A4
A4
EP invernale del fabbricato:
EP estiva del fabbricato:
Anno di costruzione:
2025
Riscaldamento:
Autonomo
Tipo impianto:
A pavimento
Tipo alimentazione:
Altro

Ti interessa visionare l'immobile?

Fissa un appuntamento  Fissa un appuntamento

Richiedi informazioni

Clicca su Leggi per aprire l'informativa
* Questi campi sono obbligatori

Calcola il tuo mutuo

Semplice e senza impegno
Anticipo

( % )
Mutuo

( % )

pochi semplici passi

inserisci i tuoi dati
Questionario completato
Grazie per aver richiesto un appuntamento senza impegno con un nostro Consulente del Credito e Assicurativo.

Hai inserito correttamente tutti i dati necessari e a breve riceverai una e-mail con un link da convalidare per inviare i tuoi dati.
Affiliato
Studio Seven Srl
Viale Don Minzoni, 176 41100 Modena (MO)

Il nostro staff


  • Andrea Bigliardi
    Affiliato

  • Marco Longobardi
    Affiliato

  • Simone Longobardi
    Collaboratore

  • Michael Pergreffi
    Collaboratore

  • Giada Oppido
    Affiliata
Viale Don Minzoni, 176 41100 Modena (MO)
Zona: Modena-Buon Pastore-Parco Amendola-Sant'Agnese
Mostra su mappa
Affiliato
Studio Seven Srl
Viale Don Minzoni, 176 41100 Modena (MO)

2026 Tecnocasa Franchising S.p.A. - P. IVA 08365160152 - Via Monte Bianco 60/A 20089 Rozzano (MI). Ogni agenzia ha un proprio titolare ed è autonoma. Privacy policy | Policy utilizzo | Cookie policy