Bilocale in vendita

Modena, Via Caselle - Centro Storico
€ 140.000
2 locali 2 locali
55 Mq 55 Mq
2 bagni 2 bagni

Bilocale in vendita

Modena, Via Caselle - Centro Storico

Descrizione annuncio

CENTRO STORICO

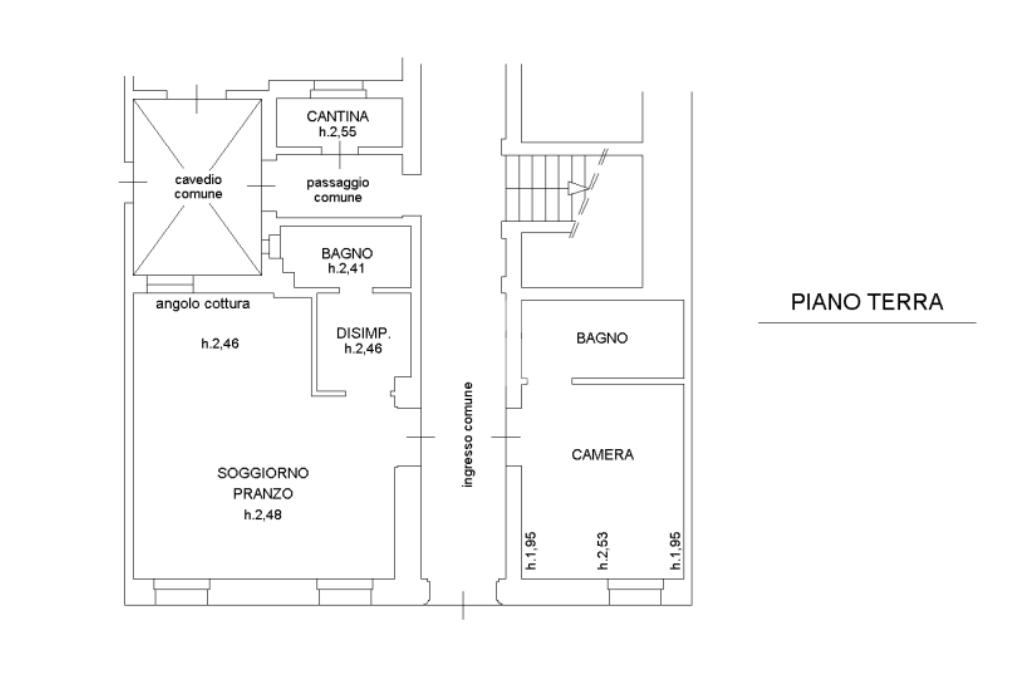
Nel cuore del Centro Storico di Modena, a pochissimi passi dalla facoltà di Giurisprudenza, proponiamo un'opportunità unica: un appartamento di 55 mq, sapientemente suddiviso in due monolocali indipendenti.

Ogni unità dispone di un ingresso privato e di un bagno, garantendo privacy e funzionalità. La posizione strategica, a pochi passi dalla facoltà di Giurisprudenza, rende questa soluzione ideale per studenti o professionisti che desiderano vivere in una zona centrale e ben servita.

L'immobile, situato al piano terra, offre anche la comodità di un giardino condominiale recintato, perfetto per momenti di relax all'aperto, e un pratico posto bici.

Completa la proprietà una cantina, utile per lo stoccaggio di oggetti personali. Questa proposta rappresenta un investimento interessante per chi cerca una soluzione abitativa versatile e ben collegata nel cuore di Modena.

Per info, il consulente risponde al 333 5466957.

Mostra tutto

Nelle vicinanze

Trasporto pubblico Trasporto pubblico
Modena Piazza Manzoni
Modena Piazza Manzoni
1,0 Km
stazione di Modena
stazione di Modena
1,4 Km
Rimembranze bv Selmi
Rimembranze bv Selmi
90 m
Rimembranze ex Questura
Rimembranze ex Questura
170 m
Modena Policlinico
Modena Policlinico
1,2 Km
Ricariche auto elettriche Ricariche auto elettriche
Modena Risorgimento | EnelX by Hera
330 m
Best Western Hotel Liberta'
600 m
Modena San Domenico | EnelX by Hera
750 m
Stazione Modena Manzoni | EnelX by Hera
980 m
Hera Ciro Menotti | EnelX by Hera
1,0 Km
Scuole Scuole
Scuola Primaria Statale "San Carlo"
160 m
Dipartimento di Giurisprudenza
170 m
Scuola Primaria Statale "G. Pascoli"
190 m
Liceo Artistico Statale “Adolfo Venturi”
210 m
Seminario Metropolitano
240 m
Farmacia Farmacia
San Giuseppe
380 m
San Marco
420 m
Collegio
450 m
Sant’Omobono
460 m
Santa Caterina
460 m
Ospedali Ospedali
Ospedale Sant'Agostino
780 m
Villa Rosa
1,3 Km
Policlinico di Modena
1,6 Km
Ospedali
1,8 Km
Supermercati Supermercati
Conad
810 m
ECU
940 m
Sigma
940 m
Esselunga
1,2 Km
Dpiù Discount
1,3 Km
Negozi Negozi
Il Granaio
250 m
Keik
280 m
Negozi
300 m
Montorsi
300 m
Eskape
310 m
Bar Bar
Bar Calypso
330 m
Il Cavatappi
370 m
Caffé del Collegio
390 m
Molinari
450 m
Embassy
890 m
Ristoranti Ristoranti
Tao
90 m
Hostaria La Frasca
190 m
Trattoria Redecocca
200 m
Carducci
210 m
Trattoria Aldina
270 m
Mostra tutto

Caratteristiche

Rif.:
61159979
Piano:
Terra di 3
Totale piani:
3
Camere da letto:
2
Arredamento:
Parziale
Condizionamento:
Autonomo
Mostra tutto
Prezzo Prezzo
€ 140.000
Rata mutuo Rata mutuo
€ 660 / mese
Spese annue Spese annue
€ 500
Proponi il tuo prezzoProponi il tuo prezzo

Classe Energetica

G
G
G
G
G
G
G
G
G
EP globale non rinnovabile:
111.11 kW h/m² anno
EP globale rinnovabile:
11.11 kW h/m² anno
EP invernale del fabbricato:
EP estiva del fabbricato:
Anno di costruzione:
1960
Riscaldamento:
Autonomo
Tipo impianto:
Ad aria
Tipo alimentazione:
Aria

Ti interessa visionare l'immobile?

Fissa un appuntamento  Fissa un appuntamento

Richiedi informazioni

Clicca su Leggi per aprire l'informativa
* Questi campi sono obbligatori

Calcola il tuo mutuo

Semplice e senza impegno
Anticipo

( % )
Mutuo

( % )

pochi semplici passi

inserisci i tuoi dati
Questionario completato
Grazie per aver richiesto un appuntamento senza impegno con un nostro Consulente del Credito e Assicurativo.

Hai inserito correttamente tutti i dati necessari e a breve riceverai una e-mail con un link da convalidare per inviare i tuoi dati.
Affiliato
Studio Seven Srl
Viale Don Minzoni, 176 41100 Modena (MO)

Il nostro staff


  • Andrea Bigliardi
    Affiliato

  • Marco Longobardi
    Affiliato

  • Simone Longobardi
    Collaboratore

  • Michael Pergreffi
    Collaboratore

  • Giada Oppido
    Affiliata
Viale Don Minzoni, 176 41100 Modena (MO)
Zona: Modena-Buon Pastore-Parco Amendola-Sant'Agnese
Mostra su mappa
Affiliato
Studio Seven Srl
Viale Don Minzoni, 176 41100 Modena (MO)

2026 Tecnocasa Franchising S.p.A. - P. IVA 08365160152 - Via Monte Bianco 60/A 20089 Rozzano (MI). Ogni agenzia ha un proprio titolare ed è autonoma. Privacy policy | Policy utilizzo | Cookie policy